产品参数:
1、消化吸收国外同行先进技术。
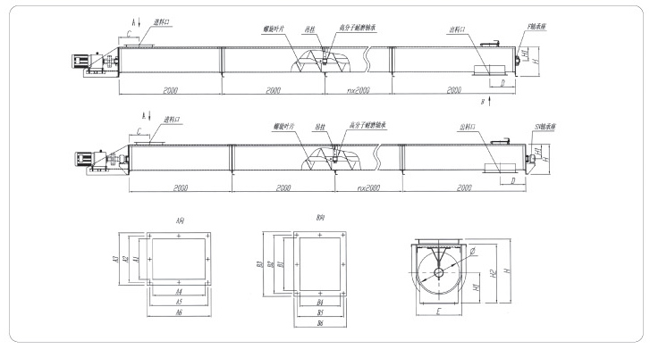
2、螺旋输送机分二种系列,一种是“半圆”型即普通螺旋输送机,另一种是“满园”型即管状螺旋输送机,螺旋叶片有左旋、右旋及等螺距与变螺距之分。
3、壳体整体成型、片叶整体压制,充分保证螺距的均等性及同心角的一致性。
4、中间吊挂结构采用超高分子耐磨材料组合件,其耐磨性可达钢材质的七倍,运转过程中不需要加油润滑,避免物料污染。
5、配设检修口、观察窗、防尘吸风口,并可根据用户要求配备防堵门、脱底清扫门等辅助结构,附配测速、防堵和轴温检测等安全保护装置。
6、整机外形美观、密封性能好、使用寿命长、工艺布置灵活,可多点进料及多点出料。
7、广泛用于各种颗粒、片状及粉状物料的水平、倾斜或垂直输送。
