地址: 江苏省张家港市金港镇德积长江东路518号

手机:139-0624-8299 (沈先生)

电话:0512-58729199

传真:0512-58750262

E-mail: zjgxuri@163.com

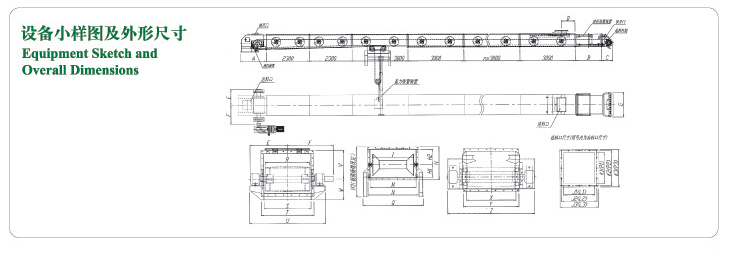
BC系列单托辊带式输送机



参照国外同行先进技术并结合我司多年制作经验而生产的原版型输送设备;该系列产品具有运行故障点少、运转噪音低、使用寿命长、运行平稳可靠、可多点进料或装料、能耗低等特点;设备全程尘封,特别适用于输送环境要求较高的物流场所,切传动部件全部外置,便于检修及保养,具有特点如下:
1、头轮采用包胶工艺,增大摩擦系数,防止皮带打滑、跑偏,提高传动效率,主动滚筒、被动滚筒、张紧滚筒均经过静平衡及动平衡校检,出口处设有专用“犁”型物料清扫装置,以保证输送物料能全部卸入斗头漏斗,尾部回程胶带的上方设有“V”型清扫输送带无载段的物料。
2、承载层采用哑铃式单托辊结构,传动部件外置,以便于维修;回程采用无托辊结构方案,上、下层输送带与外界隔绝,防尘效果好。
3、尾部采用密封型自清式返料装置,从根本上解决尾部积料问题,以达到设备全程尘封效果。
4、进料口设有对中可调节缓冲挡板,使物料下落到输送带上时能对中堆积,并降低物料对胶带的冲击,在进料槽的两侧设有橡胶挡板及防止物料泄露。
5、底板及侧板与输送带接触部位均设置超高分子抗静电、耐磨衬板、有效延长设备的使用寿命。
6、输送机的头、尾部设置特有内置式(输送带)弹性防偏装置。
7、根据设备长度及使用条件,可采用独特密闭伸缩螺杆张紧方式、固定轨道式重力张紧方式及滑轨小车式重力张紧方式,并设有张紧限位装置。
8、配设检修口、观察窗、防尘吸风口,附配测速、防堵和轴温检测等安全保护装置。
9、广泛用于港口、码头、筒仓等大吨位、超长距离的水平或倾角小于15°的各种颗粒、片状及粉状物料的输送。可单台使用,也可多台或与其他输送设备组成水平或倾斜输送系统。