

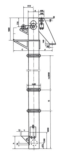
仿日式IF型斗式提升机是机械工业部重点引进消化项目-冷硬呋喃树脂砂再生成套设备中的重要辅助设备。该机由日本太洋铸机株式会社提供制造图,经国内设计、研究部门消化,由我公司制造。适合于垂直输送粉状颗粒及小块状的无粘性物料。已成功地应用在国内各冷硬呋喃树脂砂铸造车间
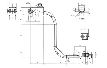
IF型斗士提升机的特点:
1皮带运行速度高,其皮带运行速度达2.25m/s,提升效率大大提高,与同样高度,同等生产率的D型斗式提升机相比,其功率消耗降低,外形尺寸减小,整体重量减轻。
2采用顶部滚筒紧张装置,进料口高度大大降低,并可以任意装在出料口的同侧、对侧或者配置双进料口,这样使得地坑深度减低,设备布置灵活方便。
3采用摆线针轮减速机减速、链条转动。传动机构紧凑,重量轻,即可之于出料口的对侧,又可直接固定在出料口的侧壁上这样使得设备所占用的空间位置尽可能减少,给面积紧张处的设备布置带来方便。
4根据用户需要,本提升机的进料口、出料口的大小、形状、在机壳上的安装位置及检修平面的大小可以在一定范围里变动。